My Work
A selection of my projects and designs.
Cookworthy
The cookworthy building was presented to me at risk of functional obsolescence following the relocation of the University of Plymouth business school to another building.
I was tasked with conducting a feasability study, examining the structure, condition, fire safety, and environmental performance. This included site investigations which showed significant heat loss, poor daylight distribution, and an underperforming building envelope.
Based on these findings, I developed a fabric-first, sustainable refurbishment proposal to convert the building into high-quality student accommodation. The design prioritised envelope upgrades, a redesigned and improved internal layout to maximise cross ventilation and daylight, as well as the integration of low-carbon renewable technologies, including ASHPs, Solar PV, MVHR and a battery energy storage system.








Pre-Retrofit Cross-Section
Outside Render of Proposed Design


Proposed Cross-Section
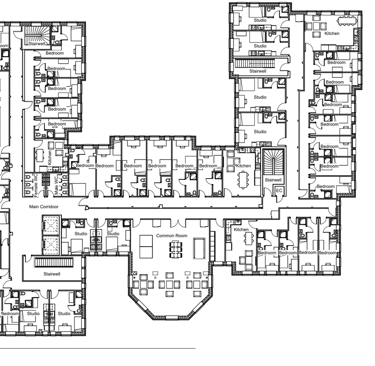
Proposed Floor Plan




Services Proposal and Wall Detail


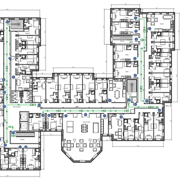
Proposed Fire Escape routes


Twinmotion Render of Proposed Spaces
Pre-Retrofit Render
Energy Analysis
I was asked to act as a consultant and assess whether a 1940s semi-detached dwelling could be retrofitted towards Nearly Zero-Energy Building (NZEB) standard.
The project involved creating a dynamic energy model of the existing house using DesignBuilder, allowing the current energy performance to be evaluated and compared against low-energy benchmarks. A fabric-first retrofit strategy was then developed, testing improvements to walls, roofs, floors and windows to reduce heat loss and energy demand.
The proposed retrofit reduced heating demand from 102 to 59 kWh/m²·year, cutting annual energy use by approximately 6,700 kWh, CO₂ emissions by around 1.7 tonnes per year, and heating costs by roughly £670 annually. In addition, an overheating risk assessment was carried out using CIBSE TM52, highlighting areas where future climate conditions may require further measures such as improved shading and ventilation.






There seem to be some lisencing issues with DesignBuilder at the moment, the models and DesignBuilder data will be added to this section once this is resolved, apologies for any inconvenience this has caused.








This was a personal project, to support a friend with 3D Design and rendering, developed for entry into a local design competition, with the intention that the strongest submission would be presented to the local council. The project explores a youth community centre, with a cafe and lounge are on the bottom floor, and a library/study space on the first floor, designed to support education, creativity, and social interaction, addressing the lack of dedicated facilities in the city.
The design prioritises maximising daylight and solar energy, alongside the use of sustainable materials, including a glulam structure and composite cladding, to promote sustainable structure and inspire the next generation to think sustainably.
Independent Design Project, Schlüchtern, Germany
Hand Drawings


















Below is a selection of my work produced through hand drawing, which I consider a fundamental part of my design process. Sketching allows me to explore ideas quickly, develop spatial understanding, and communicate intent at an early stage of design. Hand drawing is also a personal passion of mine and I regularly draw in my free time.
Hepworth House
Im proud to be working on this university project which involves the full redevelopment of Hepworth House in Plymouth, transforming an existing, near obsolete building into a state-of-the-art optometry clinic.
My role involves developing the project across RIBA Stages 0 to 4, producing technical and architectural plans sections and elevations covering the redesign, extension, and change of use of the existing building into a clinical facility. This includes linking design decisions back to site analysis, surveys, and the client brief. I am responsible for producing a complete set of drawings and high quality 3D renders, alongside a technical design strategy that takes into account building regulations and sustainability targets such as SKA Gold and EPC A, justifying key decisions around materials, construction methods, and building services in terms of performance and energy efficiency. I am also developing my skills in Revit MEP to better coordinate and represent building services, strengthening the technical depth and overall credibility of the proposal.
The site is located in a dense urban area in central Plymouth, at the heart of the university campus. Environmental conditions are relatively stable, with moderate noise levels ranging from 48–55 dB, while solar analysis shows some overshadowing from surrounding buildings, particularly at lower levels. Overall, the site is well connected and suitable for development, but is constrained by its urban context and limited ground-level sunlight.


Site Overview
At this stage, the project has progressed to RIBA Stage 2 – Concept Design, where I have developed the overall design concept, critically appraised different design options, carried out environmental analysis and building services strategies to inform the final proposed design.




Analysis shows 100% of the roof area receives at least 3 hours of winter sun, providing strong potential for photovoltaic energy generation.
Solar Analysis Using AutoDesk Forma






Daylight Potential Analysis Using AutoDesk Forma
Daylight analysis shows 44% of façade area achieves the highest daylight band, with a further 18% within the high daylight range, corresponding to strong potetial for a moderate to high daylight factor.
In response, a roof light has incorporated along the pitched roof of the new structure to maximise available daylight and introduce lighting into deep plan areas that would otherwise rely on façade glazing alone. The existing building is to be fitted with sunpipes along the roof to indroduce daylight into deep plan areaas.
Design Proposal
The new and improved hepworth house is designed to be a high-performance, sustainable facility that integrates low-carbon building services and renewable energy technologies. Systems such as PV panels, a ground source heat pump, battery storage, and MVHR enable efficient energy generation, storage, and use, allowing the building to operate as a small-scale energy hub that can contribute renewable energy to the wider campus network.
A Ground Source Heat Pump (GSHP) system is selected as the primary heating and cooling system due to its higher seasonal efficiency and operational stability compared to an Air Source Heat Pump (ASHP). Ground temperatures remain relatively constant throughout the year (typically 10–12°C in the UK), allowing the GSHP to operate with a higher Seasonal Coefficient of Performance (SCOP) than ASHP systems, which are affected by fluctuating outdoor air temperatures. The GSHP system also offers reduced external visual and acoustic impact, as the majority of the plant will be located within the basement plant room.


Bim Representation of a GSHP Plant room (QeCAD, n.d.)
Typical Commercial Battery Energy Storage System (Ampowr, n.d.)


A lithium-ion Battery Energy Storage System is incorporated to store surplus renewable electricity and distribute it across the university campus. Due to the fire risks associated with lithium-ion batteries, the BESS is to be located within a dedicated, fire-rated battery enclosure separated from the main plant areas, with provisions for ventilation, fire detection, and emergency access in accordance with fire safety guidance. This strategy reduces risk to occupants while enabling flexible energy storage for the building.








This 3D render as well as the Revit Mechanical floor plans, are to show my current progress with learning Revit MEP, so far I have been able to design, size and route simple ductwork systems and started to build an understanding of mechanical services coordination within the building model.
MVHR air handling units are to be positioned on the third floor of hepworth house so that fresh air supply and exhaust can occur directly at roof level, with ductwork routed vertically through risers to the occupied floors below. Duct sizing and pressure-loss calculations will be in accordance with CIBSE Guide B2 and ventilation criteria are informed by CIBSE Guide A.


Contact
ilija.janev@students.plymouth.ac.uk
+44 7508 479 821